اصول و مراحل ترسیم نمای ساختمان

اصول و مراحل ترسیم نمای ساختمان بدنه بیرونی ساختمان است و شکل و ظاهر بیرونی آن را نشان می دهد. هر ساختمان معمولاً 4 نما دارد، ولی در زمین های محدود شهری، ساختمان ممکن است 2 نما داشته باشد. نماهای ساختمان را بر اساس جهات جغرافیایی نام گذاری می کنند. به عنوان مثال نمای جنوبی ساختمان، مشخصات بدنه رو به جنوب ساختمان را نشان می دهد. یعنی ناظر ازسمت جنوب به ساختمان نگاه می کند.
نمای ساختمان، تعدادطبقات، محل درها و پنجره ها، نوع و ضخامت سقف و محل شکستگی ها و … را نشان می دهد و معمولاً هم اندازه با مقیاس پلان و با مقیاس 1/1000 یا 1/50 ترسیم میشود.
اصول و مراحل ترسیم نما:
۱- پس از نصب کاغذ و ترسیم کادر و جدول مشخصات و مشخص شدن محل ترسیم نما، پلان ساختمان را با توجه به جهت دید ناظر در بالای کاغذ می چسبانیم (امتداد دید ناظر عمود بر امتداد بدنه ساختمان است). به عنوان مثال اگر بخواهیم نمای شمالی را رسم کنیم باید ضلع شمالی پلان را به سمت پایین روی کاغذ بچسبانیم.
۲- خط زمین را در امتداد لبه کاغذ و عمود بر دید ناظر ترسیم می کنیم.
۳- خطوط کناری پلان و خطوط شکستگی بدنه ها را به صورت عمودی تا خط زمین ادامه می دهیم.
۴- با توجه به تراز ارتفاعی خط زمین موقعیت سقف ها و شکستگی های نما را ترسیم می کنیم.
۵- با توجه به ارتفاع نعل درگاه درها و پنجره ها و با رعایت ابعاد، درها و پنجره ها را ترسیم می کنیم.
۶- خطوط کف پنجره را ترسیم و قالب پنجره ها را کامل می کنیم.
۷- نماهای پله، ستون و ایوان های موجود در نما و خط لبه دست انداز و نرده ها را ترسیم می کنیم.
۸- کنترل ترسیمات را انجام داده و با مشخص کردن ضخامت خطوط، ترسیمات را پر رنگ تر می کنیم. سطوحی که به ناظر نزدیک ترند با خطوط پر رنگ تر ترسیم می شوند. – وضعیت ارتفاعی در نمای ساختمان با اندازه گذاری یا ترازنویسی مشخص می شود.

تمرین های عملی
تمرین اول:
نقشۀ روبه رو را با مقیاس  1/20 ترسم و اندازه گذاری کنید.  ابعاد داخلی در نقشه بر حسب سانتی متر
نمایش داده شده است.  (ضخامت دیوارهای بیرونی 35 سانتی متر است)
فرضیات:
-1 ارتفاع طبقه 290 سانتی متر.
-2 ضخامت سقف 30 سانتی متر.
-3 ارتفاع جان پناه بام 30 سانتی متر.
 -4  O.K.B. = 100 cm – برای پنجره
-5 ارتفاع پنجره تا زیر سقف است.
-6 ارتفاع درها 220 سانتی متر است.
سایر اندازه های داده نشده در حد متعارف، فرض شود.

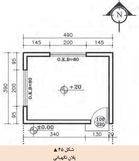
تمرین دوم:
نقشۀ روبه رو را با مقیاس 1/50  ترسیم و اندازه گذاری کنید. طول های داخلی در نقشه
نمایش داده شده است وضخامت دیوارهای بیرونی 35 سانتی متر است.
فرضیات:
-1 ارتفاع کف طبقه تا کف بام 330 سانتی متر.
-2 ضخامت سقف 30 سانتی متر.
-3 ارتفاع جان پناه بام 80 سانتی متر.
. O.K.B. = 100 cm -4 برای پنجره
-5 ارتفاع پنجره 30 سانتی متر زیر سقف است.
-6 ارتفاع درها 220 سانتی متر است.
سایر اندازه های داده نشده در حد متعارف، فرض شود.

تمرین سوم:
نقشۀ زیر را با مقیاس 1/50 ترسیم و اندازه گذاری کنید. طول های داخلی در نقشه نمایش داده شده است و ضخامت دیوارهای بیرونی 35 سانتی متر است.
فرضیات:
1. ارتفاع طبقه 290 سانتی متر.
2. ضخامت سقف 40 سانتی متر.
3. ارتفاع جان پناه بام 80 سانتی متر.
4.  O.K.B. = 100 cm  . برای پنجره
5. ارتفاع پنجره تا زیر سقف است.
6. ارتفاع درها 220 سانتی متر است.
سایر اندازه های داده نشده در حد متعارف، فرض شود.

 
  
  
  
 




